Skip to main content

Lot 5 (13 -15) Kelsey Road, Salisbury North SA

$725,000
Features
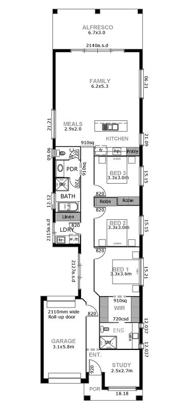
  • Bedrooms
    4
  • Bathrooms
    2
  • Garages
    1
ABOUT
Welcome to Brand new house to be build in Salisbury North, SA

 

Discover an exciting new opportunity to secure house and land package in one of Adelaide's most connected northern suburbs. Positioned in a well-established area surrounded by schools, parks, and major shopping destinations, offers the perfect foundation for investors, or home-owners ready to create something special.

 

Visit us at our Display Village in Riverlea Park to discuss on this house and land package.

 

(We can modify plans to suit your requirements)

 

Ring me on 046 907 2845 to book an appointment.

 

 

 

Included in this package you will also find:

 

  • Single Garage, Inc Panel Doors
  • 2700mm (9ft) High Ceilings
  • Insulation
  • Solar Panels
  • Powerful Ducted Reverse Cycle Airconditioning
  • Built in Robes
  • Stainless Steel Appliances
  • Site Work & Footings - Allowance

 

  • Plus Much Much More

 

 

  • Conditions apply. Certain elevations may not match the particular floor plan published in this package, as such all floor plans and elevations are for illustration purposes only. Note: Plans and photographs are indicative only E.&OE - Prices may vary depending on selections, engineering, council and utility requirements and adjustments to allowances. All packages are subject to final Council or Developer approval. The land referred to in this House & Land Package is not owned by Sterling Homes. Sterling Homes makes no representation about the suitability of the land to build on or otherwise. You must satisfy yourself of that by inspection or by taking professional advice. Land subject to availability. Land component sale by David RLA: 305086